Études VRD — UrbaVision

Réseaux humides VRD : EU / EP / AEP

Études VRD des réseaux humides : eaux usées (EU), eaux pluviales (EP), adduction d’eau potable (AEP). Tracés, profils, détails, quantitatifs et cohérence chantier.

En urbain, les réseaux humides sont un jeu d’équilibre : pentes disponibles, profondeurs, croisements, contraintes concessionnaires, raccordements, et phasage.

Notre valeur ajoutée : des plans lisibles et des profils qui “tombent juste” sur site, avec des hypothèses explicites (cotes, altimétries, contraintes) et des quantitatifs fiables.

Exemples (profils + plans + terrain)

L’objectif : sécuriser les pentes, profondeurs, raccordements et interfaces — puis traduire ça en livrables exploitables chantier.

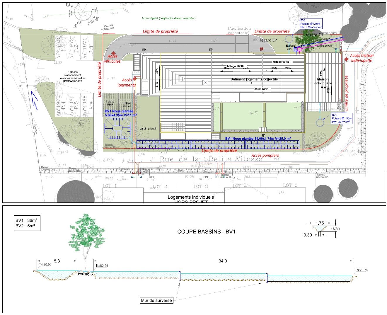
Profil en long réseaux EP : pentes, altimétrie, points singuliers et raccordements
Profil en long EP : pentes, points singuliers, raccordements, contrôles.
Plan réseaux EP : noues, regards, raccordements et ouvrages de gestion
Plan EP : ouvrages, raccordements, cohérence avec la voirie.
Chantier réseaux EP : tranchées, pose et contrôles en milieu urbain
Terrain EP : exécution, qualité, sécurité, contrôles.

Quand cette prestation est décisive

  • Création / renouvellement de réseaux EU, EP, AEP en zone urbaine.
  • Raccordement d’une opération (résidence, école, commerce) aux réseaux existants.
  • Contraintes de profondeur, croisements multiples, réseaux sensibles.
  • Besoin d’un dossier PRO/DCE clair + métrés contrôlés.

Livrables (ce que vous recevez)

  • Plans de tracé et implantation des ouvrages (regards, branchements).
  • Profils en long : pentes, profondeurs, raccordements, niveaux.
  • Détails d’ouvrages : regards, boîtes, tranchées, remblaiements.
  • Quantitatifs : linéaires, terrassements, regards, branchements.
  • Pièces de consultation (DPGF/CCTP) selon niveau de mission.

Documents utiles pour démarrer

  • Plans réseaux existants (si disponibles) + contraintes gestionnaires.
  • Topographie / altimétrie (sinon : relevé topo).
  • Programme : débits, surfaces, nombre de logements/occupants, usages.
  • Contraintes chantier : maintien de service, phasage, accès.

Voir aussi

Pages complémentaires (maillage interne pour le référencement + lecture plus simple pour vos équipes) :

FAQ

Quelle différence entre EP et gestion des eaux pluviales ?

Ici on parle des réseaux (collecte, transport, ouvrages). La page gestion des eaux pluviales traite le dimensionnement et les solutions (noues, bassins, infiltration, débit de fuite).

Vous intégrez les interfaces avec la voirie ?

Oui : pentes, altimétrie, implantation des avaloirs, raccordements, et cohérence avec les coupes de voirie.

Peut-on faire un chiffrage fiable sans topo ?

Très difficile. La topo est la base : elle conditionne les profondeurs, les terrassements et donc le budget.

En bref

  • Réseaux humides EU/EP/AEP
  • Zone : Île-de-France / France selon mission
  • Livrables exploitables chantier
  • Hypothèses et limites explicites
Demander un devis Audit express 15 min

Vous voulez un chiffrage clair ?

On cadre le besoin, les plans dispo, le planning et le niveau de détail attendu. Ensuite : devis sans zone grise.

Parler de votre projet